4 bedrooms and 2 car garage - ID 14308

File Type
CAD + PDF PDF
Drawing Sets
Architectural Drawings

Unchecking Architectural Drawings will remove the basic files

proceed cancel
Instant digital delivery 100% Money Guarantee Multiple payment options Customizable house plans Construction cost estimates
VisaMastercardAmerican Express DiscoverGoogle Pay PayPal
4 bedrooms and 2 car garage - ID 14308
File Type
CAD + PDF PDF
Drawing Sets
Architectural Drawings

Unchecking Architectural Drawings will remove the basic files

proceed cancel
Add To Wishlist
Description

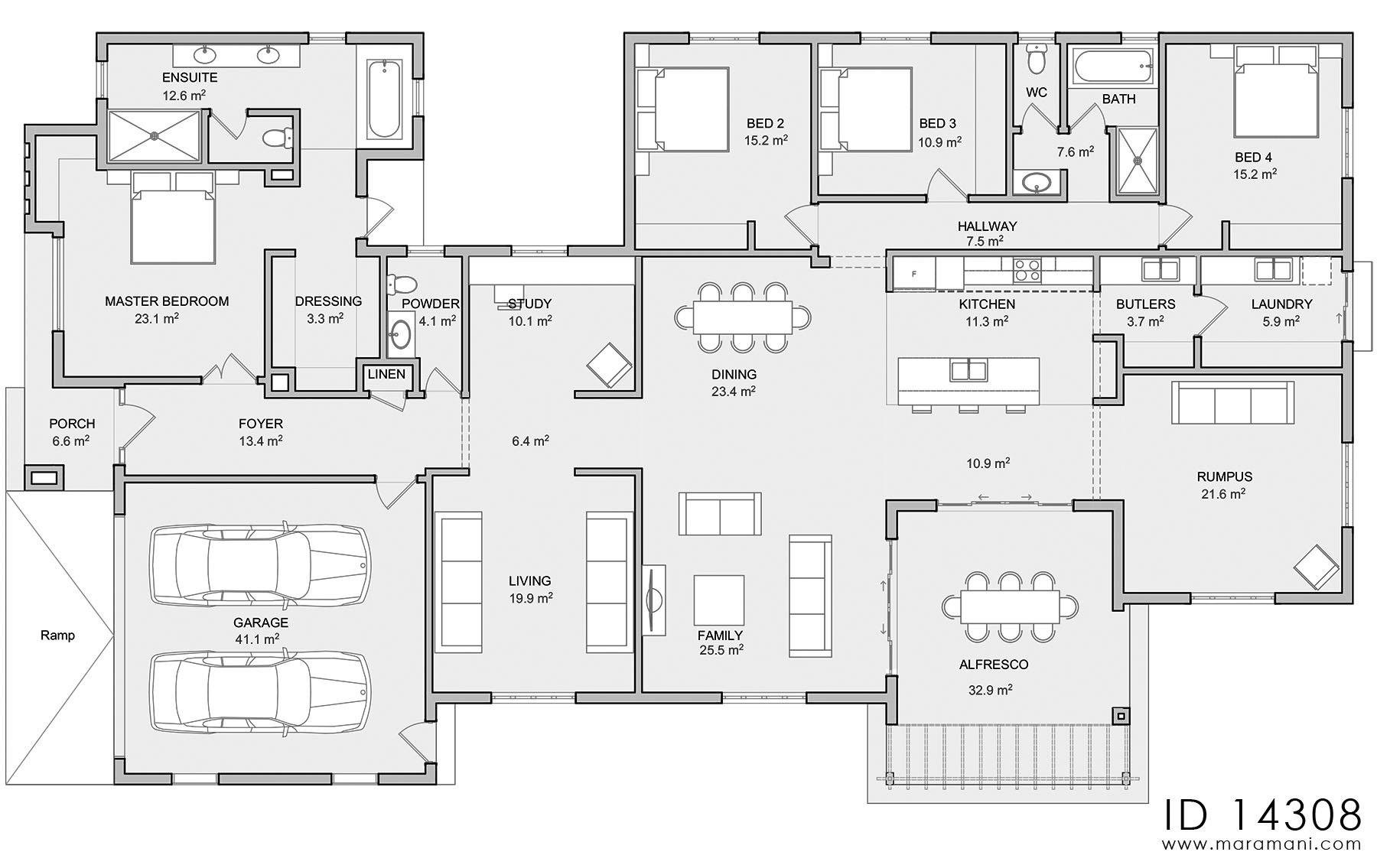
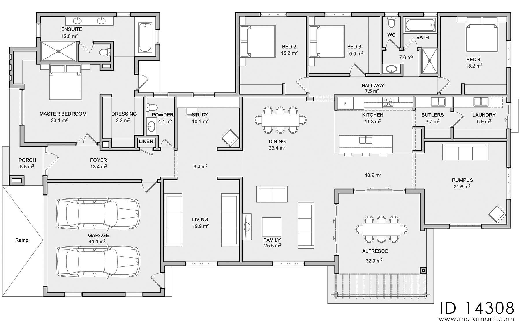
A beautiful piece of architecture on a single floor. Entering through the foyer you can go directly into the master bedroom without having to pass through the rest of the house. Whether for the security of your children or privacy this layout may suit many people. The 3 additional bedrooms are laid out next to each other with their own bathroom facilities. The plan contains a double-car garage that connects to the foyer. The layout includes a living room, study, dining, family room, kitchen, alfresco, rumpus (gaming room), laundry, butlers, and a powder room (guest WC).

Plan Details

Features Drawings List
Stories: 1
Bedroom: 4
En-suite rooms: 1
Toilets/Baths: 3
Kitchen: 1
Dining room: 1
Living room: 1
Laundry: 1
Office/ study: 1
Verandah: 2
family room: 1
Butlers: 1
Rumpus/games room: 1
Alfresco: 1
Garage: 2 cars

Foundation Plan
Floor plan
Roof plan
Sections
Elevations
Schematic electrical layout
Door and window schedule
Furniture layout plan
Details
Septic tank and soak pit details

*Drawings delivered in PDF and DWG Format

Very efficient, timely and money well spent.I loved the house plan and i received it immediately upon making payment. Thank you for your wonderful services. I recommend anyone buy from here without any reservations.

Ekong Richard

The company was responsive when I enquired about the services. The website is user friendly and easy to navigate.

Lutinala Nalomba

Comprehensive and fast response to my concern. Received the plans as detailed as promised, Bravo.

Henry Wanjala

Details were excellent, prices unbeatable Delivery was excellent.

Samuel Berko

The service is impeccable. Maramani response time is very fast. Immediately after I had made the payment I received my plans after 30 mins or less. Thanks Maramani for the excellent service.

Bose Mhizha

Drawing Sets & Rooms Included

Rooms included

  • ✔ Master Bedroom
  • ✔ Bedroom
  • ✔ Bathroom
  • ✔ Kitchen
  • ✔ Dining Room
  • ✔ Living Room
  • ✔ Laundry
  • ✔ Office/Library
  • ✔ Veranda
  • ✔ Family Room
  • ✔ Garage/Parking
  • ✔ Game Room

Architectural drawings

  • ✔ Foundation Plan
  • ✔ Floor Plan
  • ✔ Door Schedule
  • ✔ Sections
  • ✔ Elevations
  • ✔ Furniture Layout Plans
  • ✔ Schematic Electrical Layout
  • ✔ Septic Tank & Soak Away Pit
  • ✔ Window Schedule
383

Construction Cost Calculator

Basic
Standard
Luxury
Item Cost Estimates
1. Substructure
2. Superstructure
3. Roof
4. Doors
5. Windows
6. Finishes
7. Decorations
8. Plumbing Installations
9. Electrical Installations
TOTAL

FAQ

Our customer support is available Monday to Friday: 8am-8:30pm.Average answer time: 24h

Customer Reviews

Be the first to write a review
0%
(0)
0%
(0)
0%
(0)
0%
(0)
0%
(0)